Перейти к содержанию

Хочу заказать металлоконструкцию.


Рекомендуемые сообщения

Опубликовано

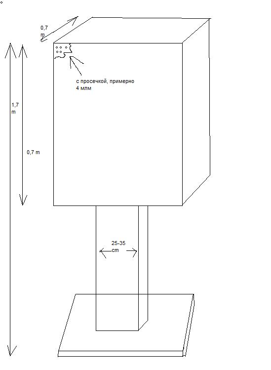
Необходимо изготовить металлоконструкцию - стойку, несколько.

На одной опоре. Железный корпус (железный лист 1 млм с просечкой), с возможностью механического вращения.

Подробности по телефону, мне надо узнать цену, если кто сможет сделать, то закажу.

тел.: 63-37-93

Добавлено спустя 14 минут 38 секунд:

shema.jpg

Присоединяйтесь к обсуждению

Вы можете написать сейчас и зарегистрироваться позже. Если у вас есть аккаунт, авторизуйтесь, чтобы опубликовать от имени своего аккаунта.

Гость
Ответить в этой теме...

×   Вставлено с форматированием.   Вставить как обычный текст

  Разрешено использовать не более 75 эмодзи.

×   Ваша ссылка была автоматически встроена.   Отображать как обычную ссылку

×   Ваш предыдущий контент был восстановлен.   Очистить редактор

×   Вы не можете вставлять изображения напрямую. Загружайте или вставляйте изображения по ссылке.

  • Последние посетители   0 пользователей онлайн

    • Ни одного зарегистрированного пользователя не просматривает данную страницу
×
×
  • Создать...