Перейти к содержанию

Фундамент фбс помогите пожалуйста с рядами фбс


Рекомендуемые сообщения

Опубликовано (изменено)

Здравствуйте всем. Вообщем не могу рассчитать сколько надо блоков фбс для фундамента на цокольный этаж. 

Помогите рассчитать пожалуйста и как укладывать ряды? 

Совсем уже перегрелся мозг. 

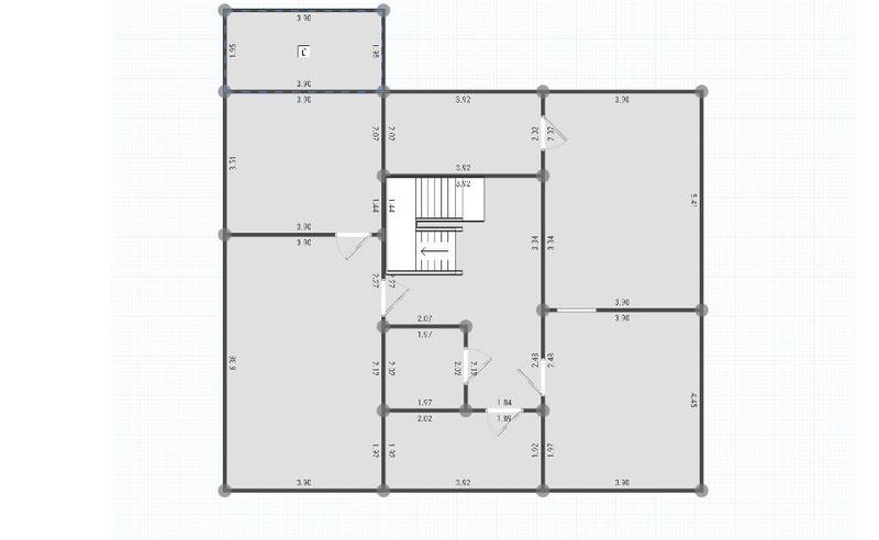
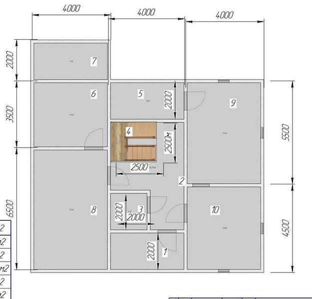
Вот план цокольного этажа с разъёмами 

внутренние размеры комнат

9EE7FD9A-72D8-4AFC-87D1-66B734BF26C5.jpeg

5FEE80D6-43B1-4036-9800-CD1901F7E9EE.jpeg

Изменено пользователем Jersey-go

Присоединяйтесь к обсуждению

Вы можете написать сейчас и зарегистрироваться позже. Если у вас есть аккаунт, авторизуйтесь, чтобы опубликовать от имени своего аккаунта.

Гость
Ответить в этой теме...

×   Вставлено с форматированием.   Вставить как обычный текст

  Разрешено использовать не более 75 эмодзи.

×   Ваша ссылка была автоматически встроена.   Отображать как обычную ссылку

×   Ваш предыдущий контент был восстановлен.   Очистить редактор

×   Вы не можете вставлять изображения напрямую. Загружайте или вставляйте изображения по ссылке.

  • Последние посетители   0 пользователей онлайн

    • Ни одного зарегистрированного пользователя не просматривает данную страницу
×
×
  • Создать...